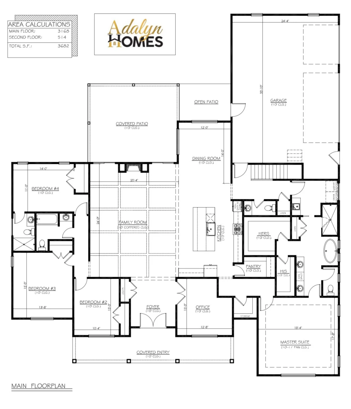
The R. William (3,682 sq ft total — Main: 3,168; Upper: 514) is a spacious ranch-style plan centered on a large coffered family room with fireplace that opens to a covered rear patio and adjacent dining area and oversized kitchen with island and pantry. The front entry/foyer is flanked by an office and formal entry spaces, while a left wing contains three secondary bedrooms and 2 full baths. The private master suite at the rear right includes an ensuite with dual closets (His & Hers) and direct access to the utility/drop zone and oversized garage. An upper-level bonus room and optional fifth bedroom with bath provide flexible additional living space.

Previous
Previous

The Jordan (2,865 sq.ft)