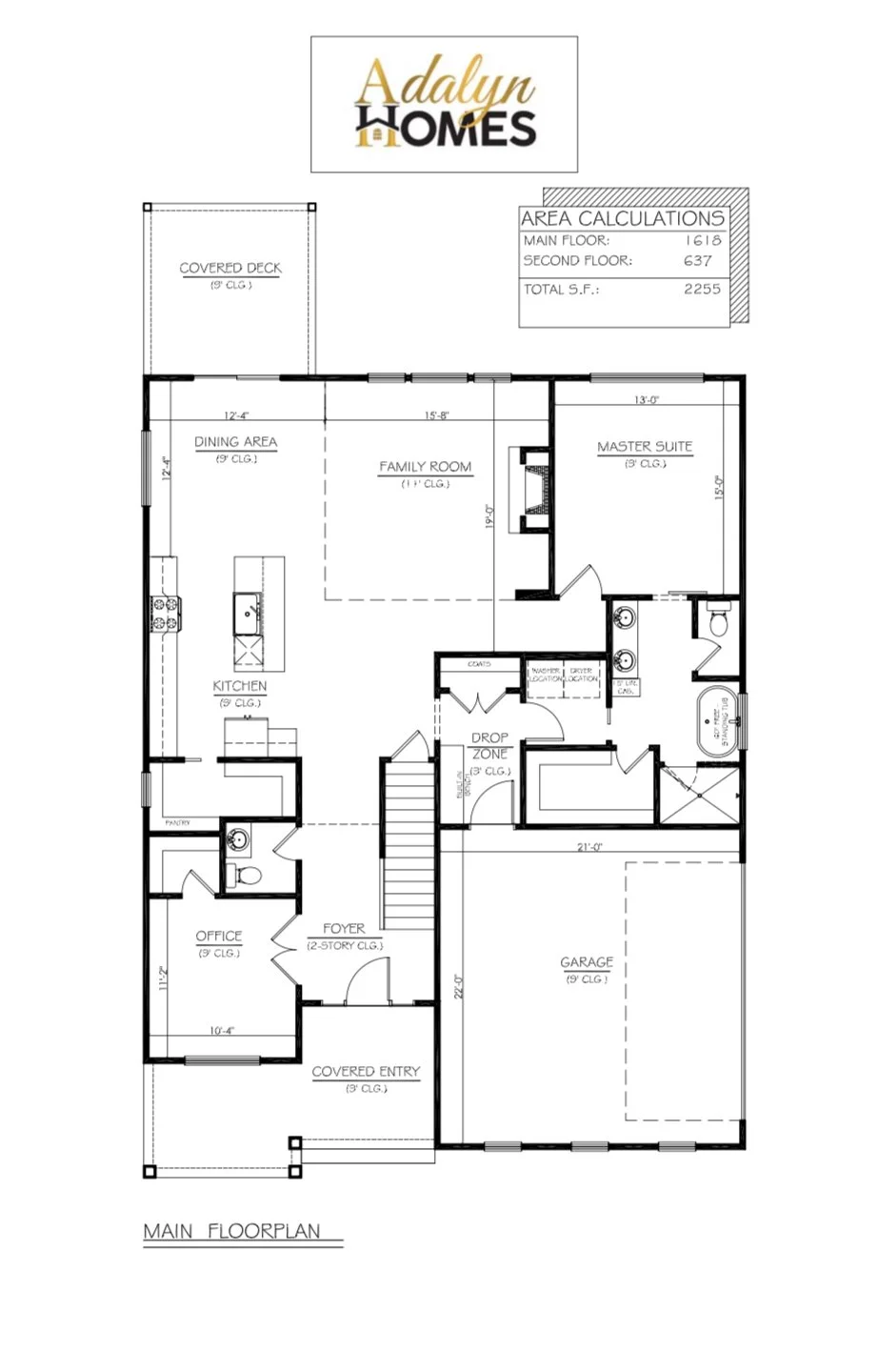
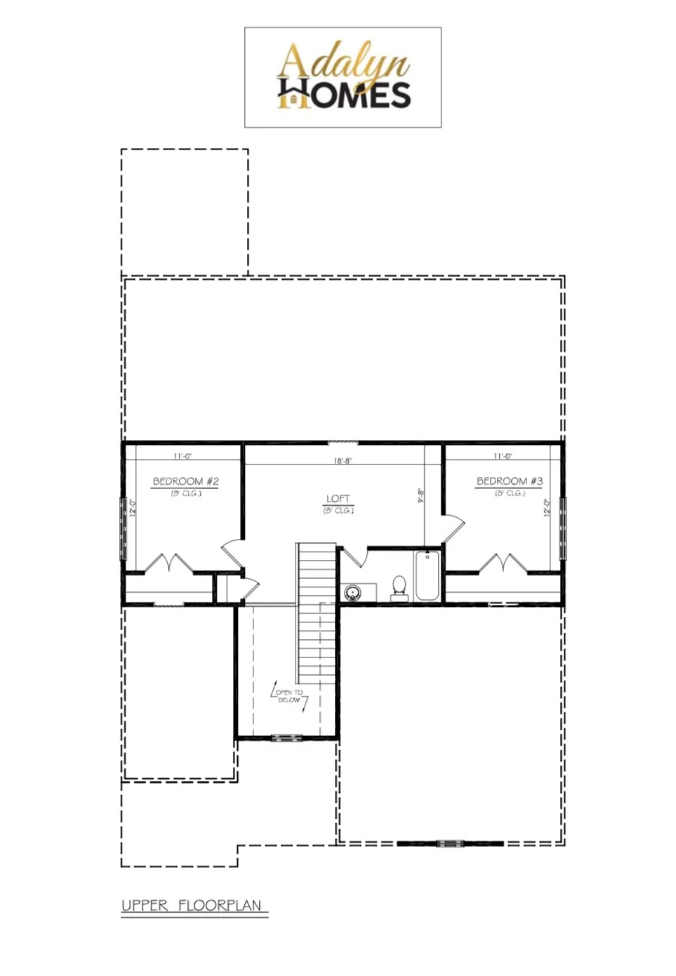
The Kydan (2,255 sq ft total — Main: 1,618; Upper: 637) is a two‑story home with a covered front entry and two‑story foyer leading to a front office and powder room, a central open family room with fireplace that flows to a dining area and kitchen with large island and pantry, and a covered rear deck. The main floor also includes a rear‑right master suite with ensuite bath and walk‑in closet, a drop‑zone/mudroom and laundry off the two‑car garage. The upper level has a loft overlooking below and two secondary bedrooms with a shared bathroom — a layout balancing open main living spaces with private bedroom areas.

Previous
Previous

The Annelise (1,922 sq.ft)

Next
Next

The Jordan (2,865 sq.ft)